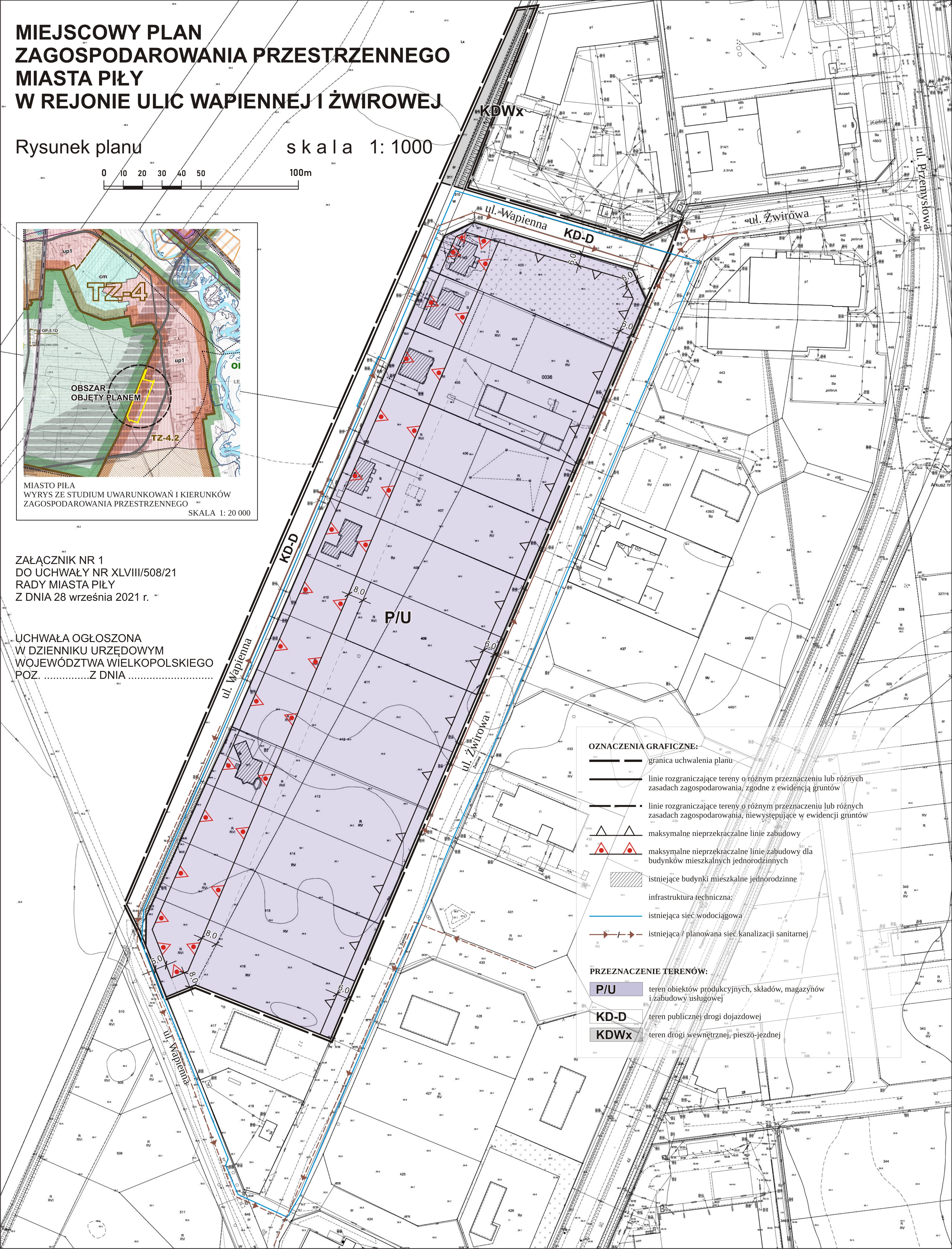
Uchwała Nr XLVIII/508/21
Rady Miasta Piły
z dnia 28 września 2021 r.
w sprawie miejscowego planu zagospodarowania przestrzennego miasta Piły w rejonie ulic Wapiennej i Żwirowej
| Dokumenty do pobrania: | |
![]() | Treść uchwały (wprowadził: Piotr Kutz 2021-09-29 14:23:01) |
![]() | Załącznik nr 1 (wprowadził: Piotr Kutz 2021-09-29 14:23:17) |
![]() | Załącznik nr 1 - geotif (wprowadził: Piotr Kutz 2021-09-29 14:23:45) |
![]() | Załącznik nr 5 (wprowadził: Piotr Kutz 2021-11-16 15:42:34) |
![]() | |








