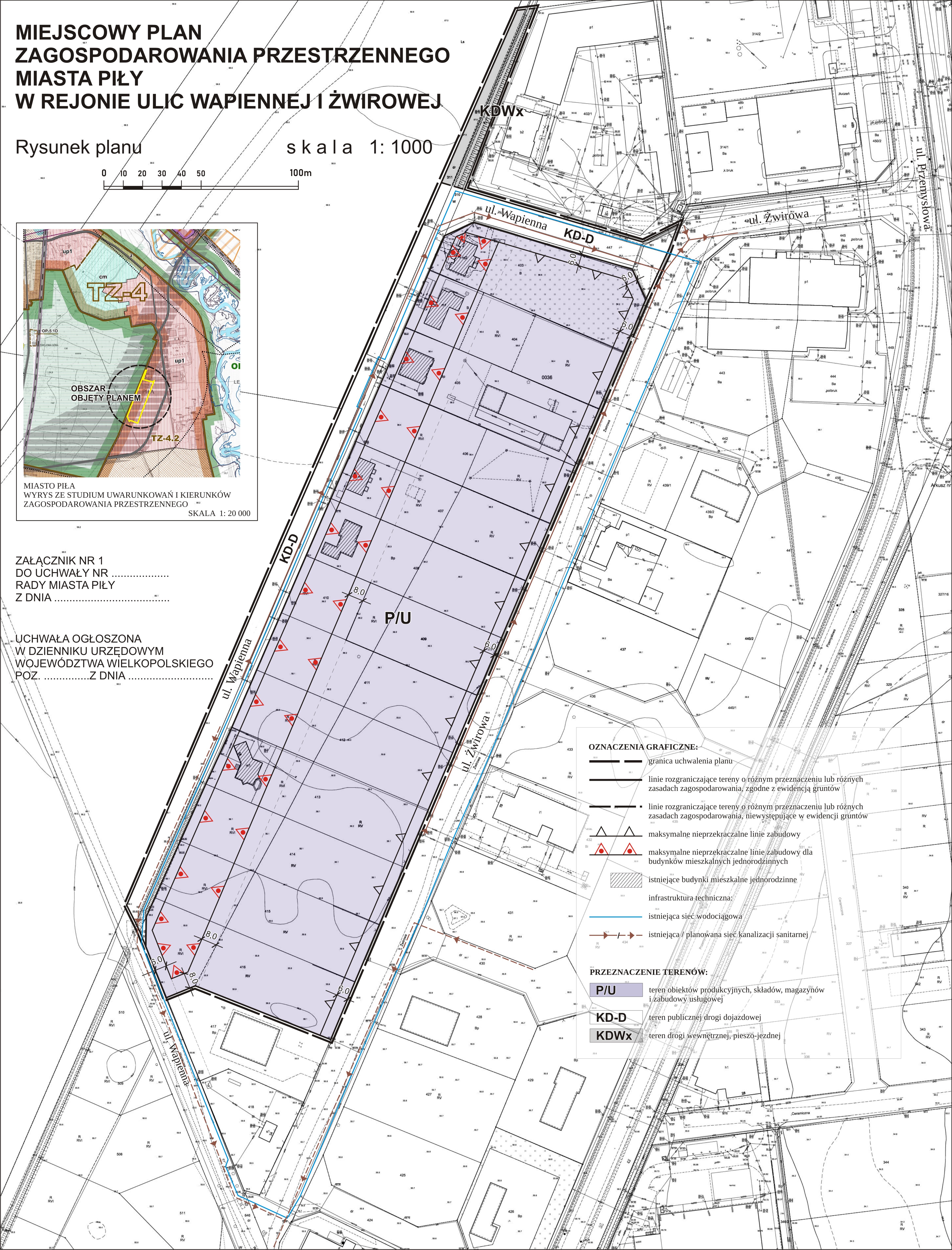
Projekt miejscowego planu zagospodarowania przestrzennego miasta Piły w rejonie ulic Wapiennej i Żwirowej
| Dokumenty do pobrania: | |
![]() | Projekt uchwały (wprowadził: Krzysztof Ronij 2021-04-26 13:02:35) |
![]() | Rysunek projektu planu (wprowadził: Krzysztof Ronij 2021-04-26 13:02:58) |
![]() | Prognoza oddziaływania na środowisko (wprowadził: Krzysztof Ronij 2021-04-26 13:03:21) |
![]() | |






