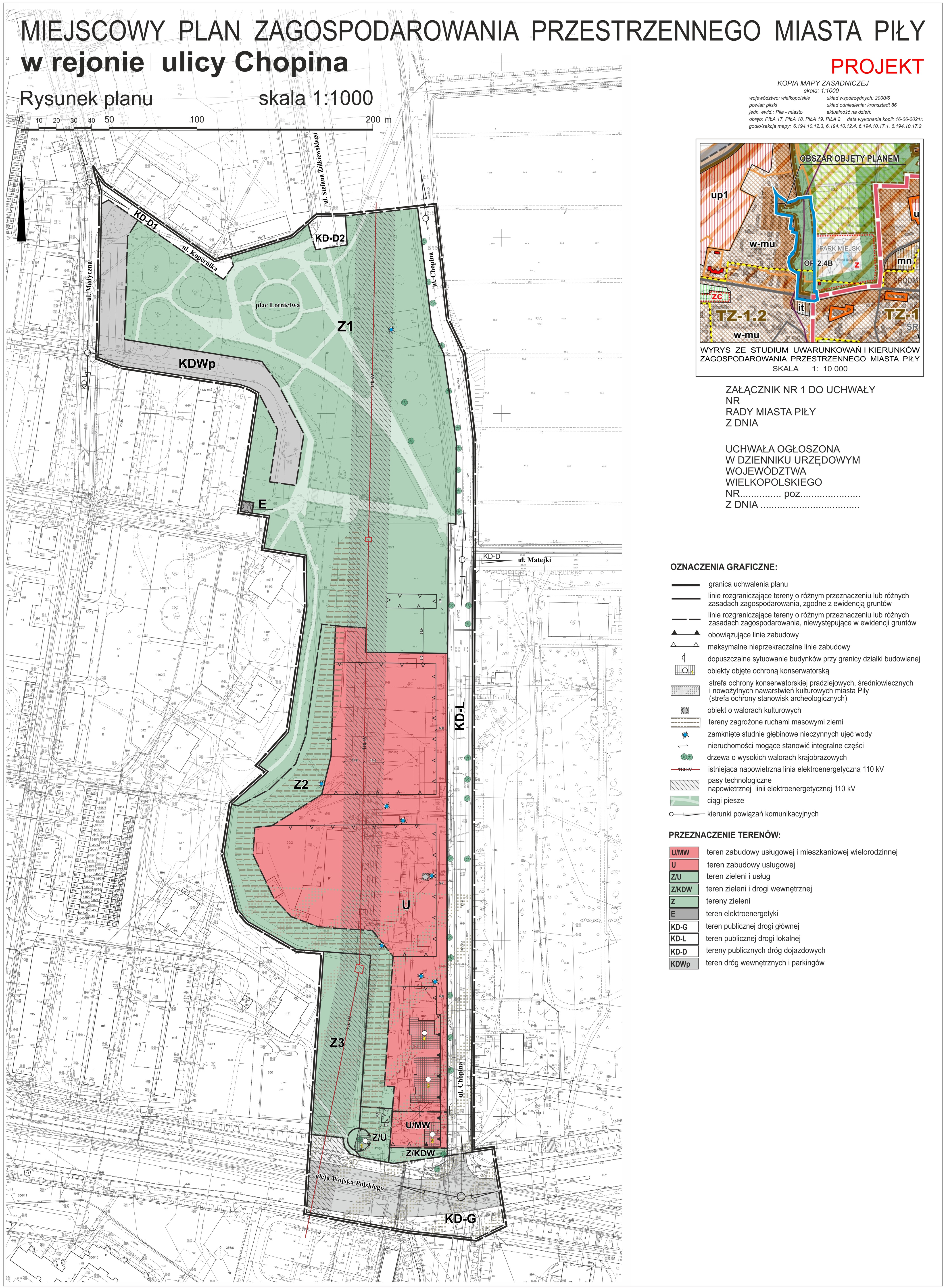
Miejscowy plan zagospodarowania przestrzennego miasta Piły w rejonie ulicy Chopina
| Dokumenty do pobrania: | |
![]() | Projekt uchwały (wprowadził: Krzysztof Ronij 2022-05-27 09:49:52) |
![]() | Rysunek projektu planu (wprowadził: Krzysztof Ronij 2022-05-27 09:50:16) |
![]() | Prognoza oddziaływania na środowisko (wprowadził: Krzysztof Ronij 2022-05-27 09:50:31) |
![]() | |






