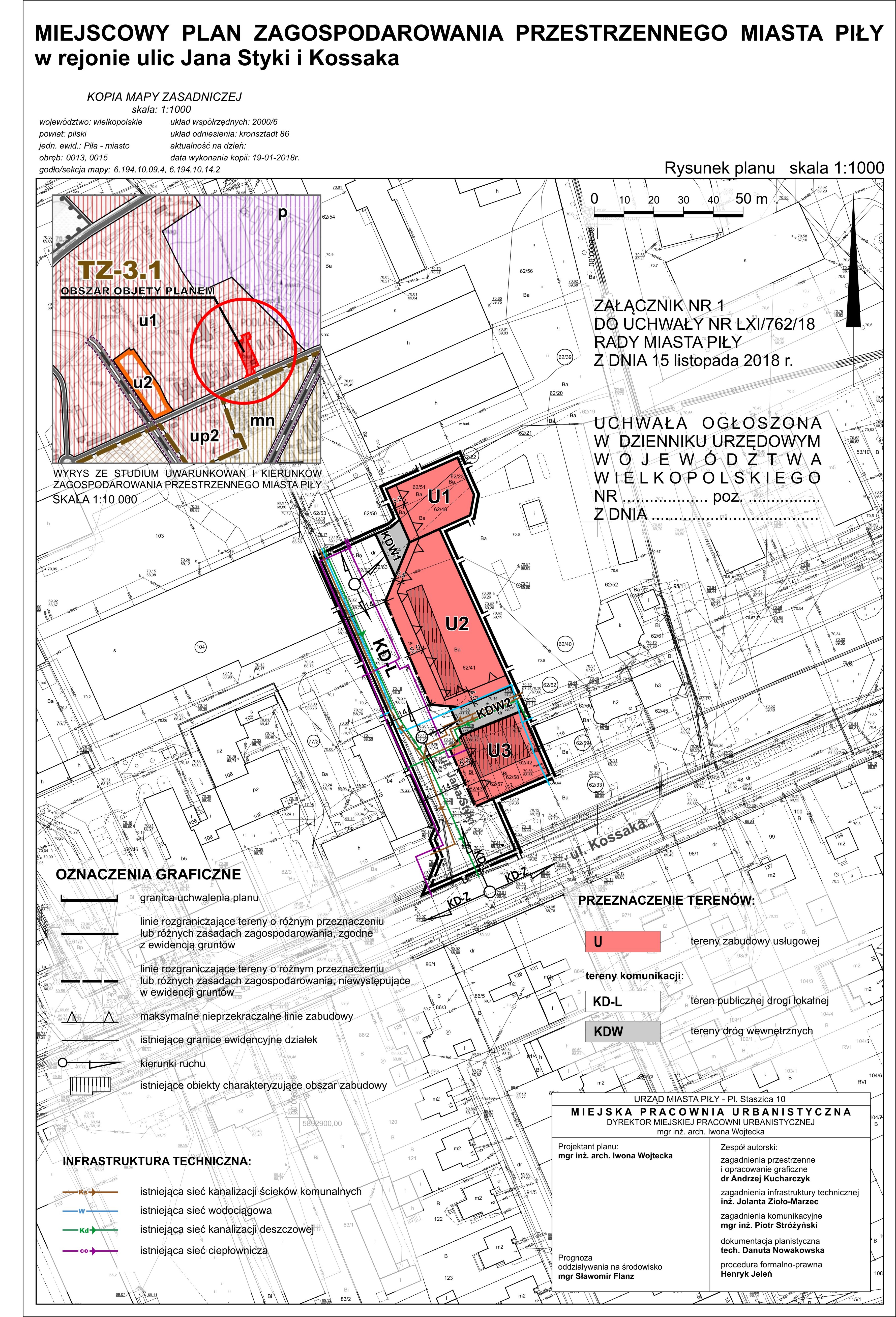
UCHWAŁA NR LXI/762/18
RADY MIASTA PIŁY
z dnia 15 listopada 2018 r.
w sprawie miejscowego planu zagospodarowania przestrzennego miasta Piły w rejonie ulic Jana Styki i Kossaka
| Dokumenty do pobrania: | |
![]() | Treść uchwały (wprowadził: Piotr Kutz 2018-11-22 11:25:10) |
![]() | Załącznik nr 1 (wprowadził: Piotr Kutz 2018-11-22 11:25:24) |
![]() | |






