Na podstawie art. 18 ust. 2 pkt 5 ustawy z dnia 8 marca 1990r. o samorządzie gminnym (j. t. Dz. U. z 2001r. Nr 142 poz. 1591 zmiana: Dz. U. z 2002r. Nr 23 poz. 220, Nr 62 poz. 558, Nr 113 poz. 984, Nr 153 poz. 1271, Nr 214 poz. 1806, Dz. U. z 2003r. Nr 80 poz. 717, Nr 162 poz. 1568, Dz. U. z 2004r. Nr 102 poz. 1055, Nr 116 poz. 1203, Nr 167 poz. 1759, Dz. U. z 2005r. Nr 172 poz. 1441, Nr 175 poz. 1457, Dz. U. z 2006r. Nr 17 poz. 128, Nr 181 poz. 1337, Dz. U. z 2007r. Nr 48 poz. 327, Nr 138 poz. 974, Nr 173 poz. 1218), art. 20 ustawy z dnia 27 marca 2003r. o planowaniu i zagospoda-rowaniu przestrzennym (Dz. U. Nr 80 poz. 717, zmiana Dz. U. z 2004r. Nr 6 poz. 41, Dz. U. Nr 141 poz. 1492, Dz. U. z 2005r. Nr 113 poz. 954, Nr 130 poz. 1087, Dz. U. z 2006r. Nr 45 poz. 319, Nr 225 poz. 1635, Dz. U. z 2007r. Nr 127 poz. 880)
| Dokumenty do pobrania: | |
![]() | Treść uchwały (wprowadził: 2008-09-02 00:00:00) |
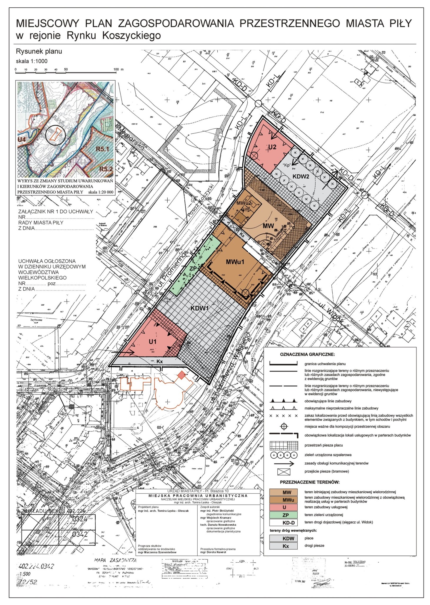
![]() | Załącznik nr 1 (wprowadził: 2008-09-02 00:00:00) |
![]() | Załącznik nr 2 (wprowadził: 2008-09-02 00:00:00) |
![]() | |






