Strona korzysta z plików cookies w celu realizacji usług i zgodnie z Polityką Prywatności. Możesz określić warunki przechowywania lub dostępu do plików cookies w Twojej przeglądarce. X
Urzędu Miasta Piły (Archiwum)
Bip - Strona główna

Rada Miasta

Urząd Miasta

Oświadczenia majątkowe

Załatwianie spraw w Urzędzie

Ogłoszenia i komunikaty »

Prawo lokalne

Przetargi na nieruchomości i ruchomości gminne

Konkursy ofert

Zagospodarowanie przestrzenne

Nabór na stanowiska

Jednostki organizacyjne

Jednostki pomocnicze-Osiedla »

Budżet i mienie Gminy

Raporty o stanie Gminy Piła »

Organizacje pozarządowe

Strategie i programy »

Ochrona środowiska

Informacja publiczna

Konsultacje z mieszkańcami »

Spisy Powszechne

Wybory Powszechne

Zgromadzenia publiczne

Działalność lobbingowa

Polityka prywatności »

Ochrona Danych Osobowych »

Elektroniczna Skrzynka Podawcza »

Dostępność

Miejska Komisja Rozwiązywania Problemów Alkoholowych »

walidacja css walidacja html

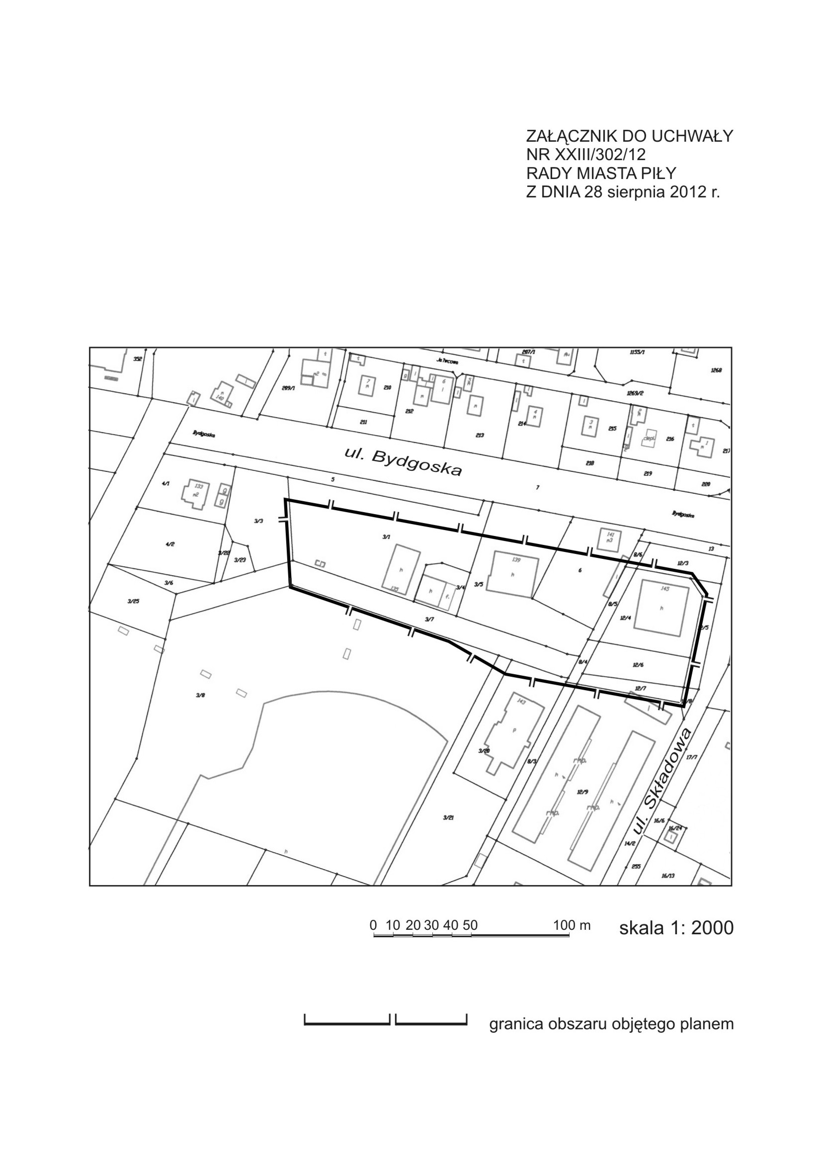
Uchwały Rady Miasta: w sprawie przystąpienia do sporządzenia miejscowego planu zagospodarowania przestrzennego miasta Piły w rejonie ulic Bydgoskiej i Składowej

Na podstawie art. 18 ust. 2 pkt 15 ustawy z dnia 8 marca 1990r. o samorządzie gminnym (j. t. Dz. U. z 2001r. Nr 142 poz. 1591 zmiana: Dz. U. z 2002r. Nr 23 poz. 220, Nr 62 poz. 558, Nr 113 poz. 984, Nr 153 poz. 1271, Nr 214 poz. 1806, z 2003r. Nr 80 poz. 717, Nr 162 poz. 1568, Dz. U. z 2004r. Nr 102 poz. 1055, Nr 116 poz. 1203, Nr 167 poz. 1759, Dz. U. z 2005r. Nr 172 poz. 1441, Nr 175 poz. 1457, Dz. U. z 2006r. Nr 17 poz. 128, Nr 181 poz. 1337, Dz. U. z 2007r. Nr 48 poz. 327, Nr 138 poz. 974, Nr 173 poz. 1218, Dz. U. z 2008r. Nr 180 poz. 1111, Nr 223 poz. 1458, Dz. U. z 2009r. Nr 52 poz. 420, Nr 157 poz. 1241, Dz. U. z 2010r. Nr 28 poz. 142 i 146, Nr 40 poz. 230, Nr 106 poz. 675, Dz. U. z 2011r. Nr 21 poz. 113, Nr 117 poz.679, nr 134 poz. 777, Nr 217 poz. 1281, Nr 149 poz. 887, Dz. U. z 2012 r. poz. 567), art. 14 ust. 1 i 4 ustawy z dnia 27 marca 2003r. o planowaniu i zagospodarowaniu przestrzennym (j. t. Dz. U. z 2012r. poz. 647)

Dokumenty do pobrania:
Treść uchwały
(wprowadził: 2012-08-28 00:00:00)
Załącznik
(wprowadził: 2012-08-28 00:00:00)
 
   

wstecz