Na podstawie art. 18 ust. 2 pkt 5 ustawy z dnia 8 marca 1990r. o samorządzie gminnym (j. t. Dz. U. z 2001r. Nr 142 poz. 1591 zmiana: Dz. U. z 2002r. Nr 23 poz. 220, Nr 62 poz. 558, Nr 113 poz. 984, Nr 153 poz.1271, Nr 214 poz. 1806, Dz. U. z 2003r. Nr 80 poz. 717, Nr 162 poz. 1568, Dz. U. z 2004r. Nr 102 poz. 1055, Nr 116 poz. 1203, Nr 167 poz. 1759, Dz. U. z 2005r. Nr 172 poz. 1441, Nr 175 poz. 1457, Dz. U. z 2006r. Nr 17 poz. 128, Nr 181 poz. 1337, Dz. U. z 2007r. Nr 48 poz. 327, Nr 138 poz. 974, Nr 173 poz. 1218, Dz. U. z 2008r. Nr 180 poz. 1111, Nr 223 poz. 1458, Dz. U. 2009r. Nr 52 poz. 420, Nr 157 poz. 1241, Dz. U. z 2010r. Nr 28 poz. 142 i 146, Nr 40 poz. 230, Nr 106 poz. 675, Dz. U. z 2011r. Nr 117 poz. 679, Nr 21 poz. 113, Nr 134 poz. 777), art. 20 ust.1 ustawy z dnia 27 marca 2003r. o planowaniu i zagospodarowaniu przestrzennym (Dz. U. Nr 80 poz. 717, zmiana: Dz. U. z 2004r. Nr 6 poz. 41, Nr 141 poz. 1492, Dz. U. z 2005r. Nr 113 poz. 954, Nr 130 poz. 1087, Dz. U. z 2006r. Nr 45 poz. 319, Nr 225 poz. 1635, Dz. U. z 2008r. Nr 199 poz. 1227, Nr 201 poz. 1237, Nr 220 poz. 1413, Dz. U. z 2010r. Nr 24 poz. 124, Nr 75 poz. 474, Nr 106 poz. 675, Nr 119 poz. 804, Nr 130 poz. 871, Nr 149 poz. 996, Nr 155 poz. 1043, Dz. U. z 2011r. Nr 32 poz. 159, Nr 153 poz. 901)
| Dokumenty do pobrania: | |
![]() | Treść uchwały (wprowadził: 2011-09-27 00:00:00) |
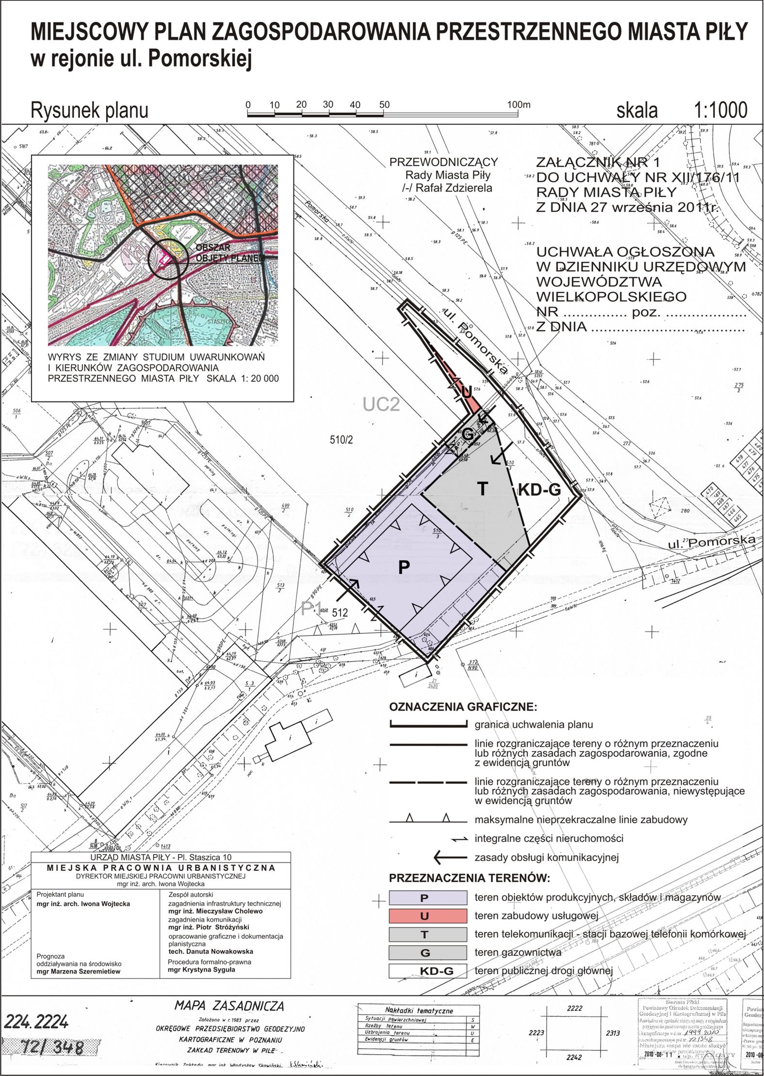
![]() | Załącznik nr 1 (wprowadził: 2011-09-27 00:00:00) |
![]() | Załączniki (wprowadził: 2011-09-27 00:00:00) |
![]() | |






