Uchwała Nr XII/242/15
Rady Miasta Piły
z dnia 27 października 2015 r.
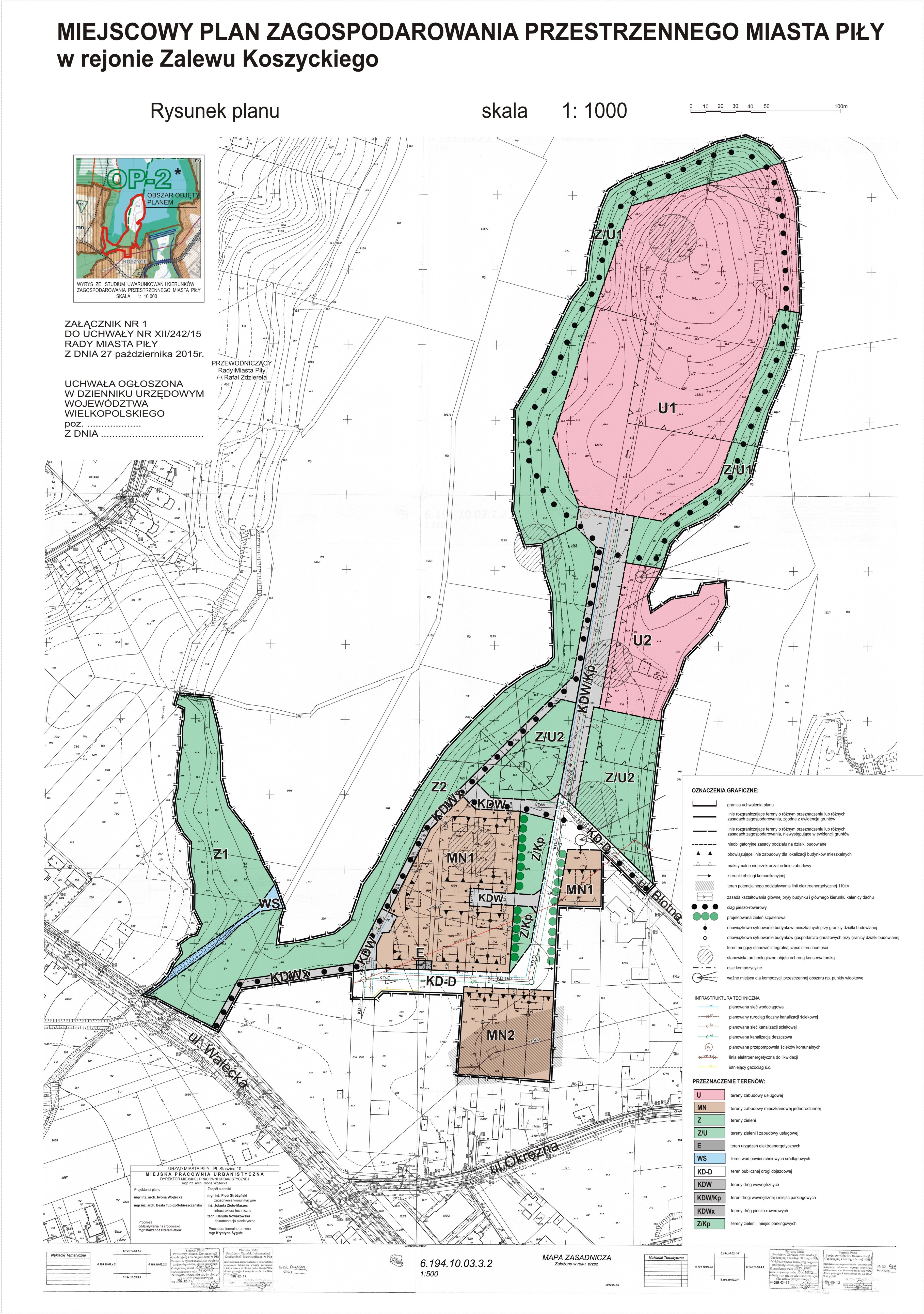
w sprawie miejscowego planu zagospodarowania przestrzennego miasta Piły w rejonie Zalewu Koszyckiego
| Dokumenty do pobrania: | |
![]() | Treść uchwały (wprowadził: Piotr Kutz 2015-11-08 23:00:58) |
![]() | Załącznik nr 1 (wprowadził: Piotr Kutz 2015-11-08 23:01:16) |
![]() | |






