Na podstawie art. 18 ust. 2 pkt 5 ustawy z dnia 8 marca 1990r. o samorządzie gminnym (j. t. Dz. U. z 2013r. poz. 594, zmiana: Dz. U. z 2013r. poz. 645), art. 20 ust.1 ustawy z dnia 27 marca 2003r. o planowaniu i zagospodarowaniu przestrzennym (j. t. Dz. U. z 2012r. poz. 647, zmiana: Dz. U. z 2012r. poz. 951, poz. 1445, Dz. U. z 2013r. poz. 21, poz. 405)
| Dokumenty do pobrania: | |
![]() | Treść uchwały (wprowadził: 2013-11-26 00:00:00) |
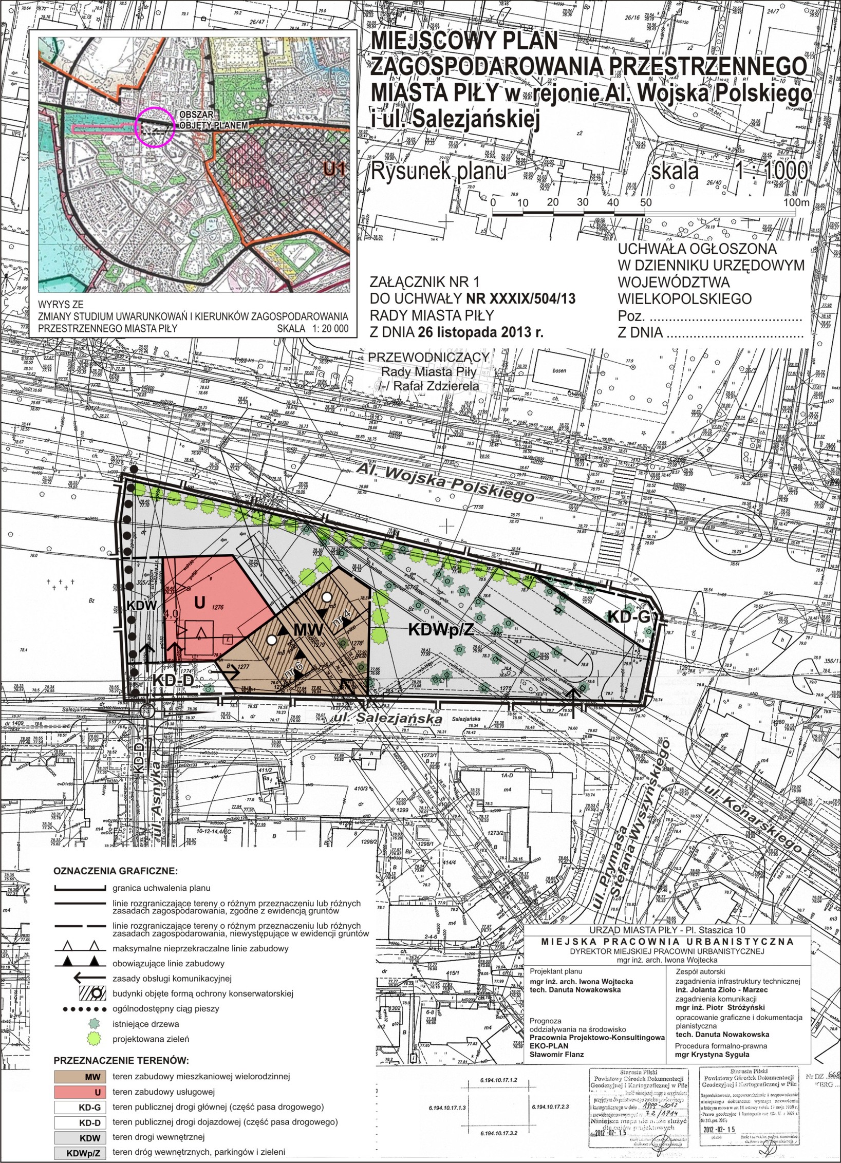
![]() | Załącznik nr 1 (wprowadził: 2013-11-26 00:00:00) |
![]() | |






