Uchwała Nr VI/74/15
Rady Miasta Piły
z dnia 31 marca 2015 roku
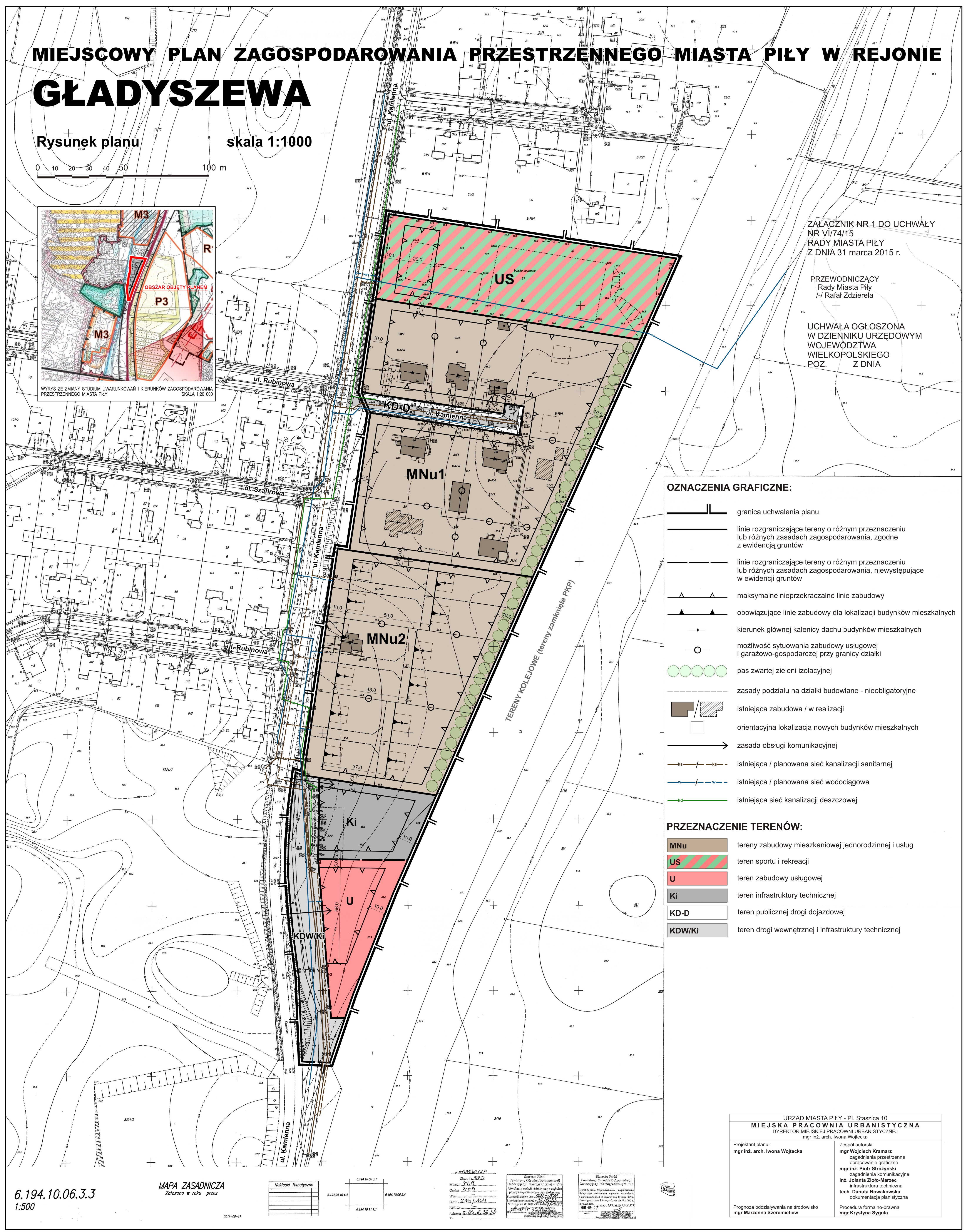
w sprawie miejscowego planu zagospodarowania przestrzennego miasta Piły w rejonie Gładyszewa
| Dokumenty do pobrania: | |
![]() | Treść uchwały (wprowadził: Piotr Kutz 2015-04-13 09:44:58) |
![]() | Załącznik (wprowadził: Piotr Kutz 2015-04-13 09:45:15) |
![]() | |






