Uchwała Nr LI/648/18
Rady Miasta Piły
z dnia 27 marca 2018 r.
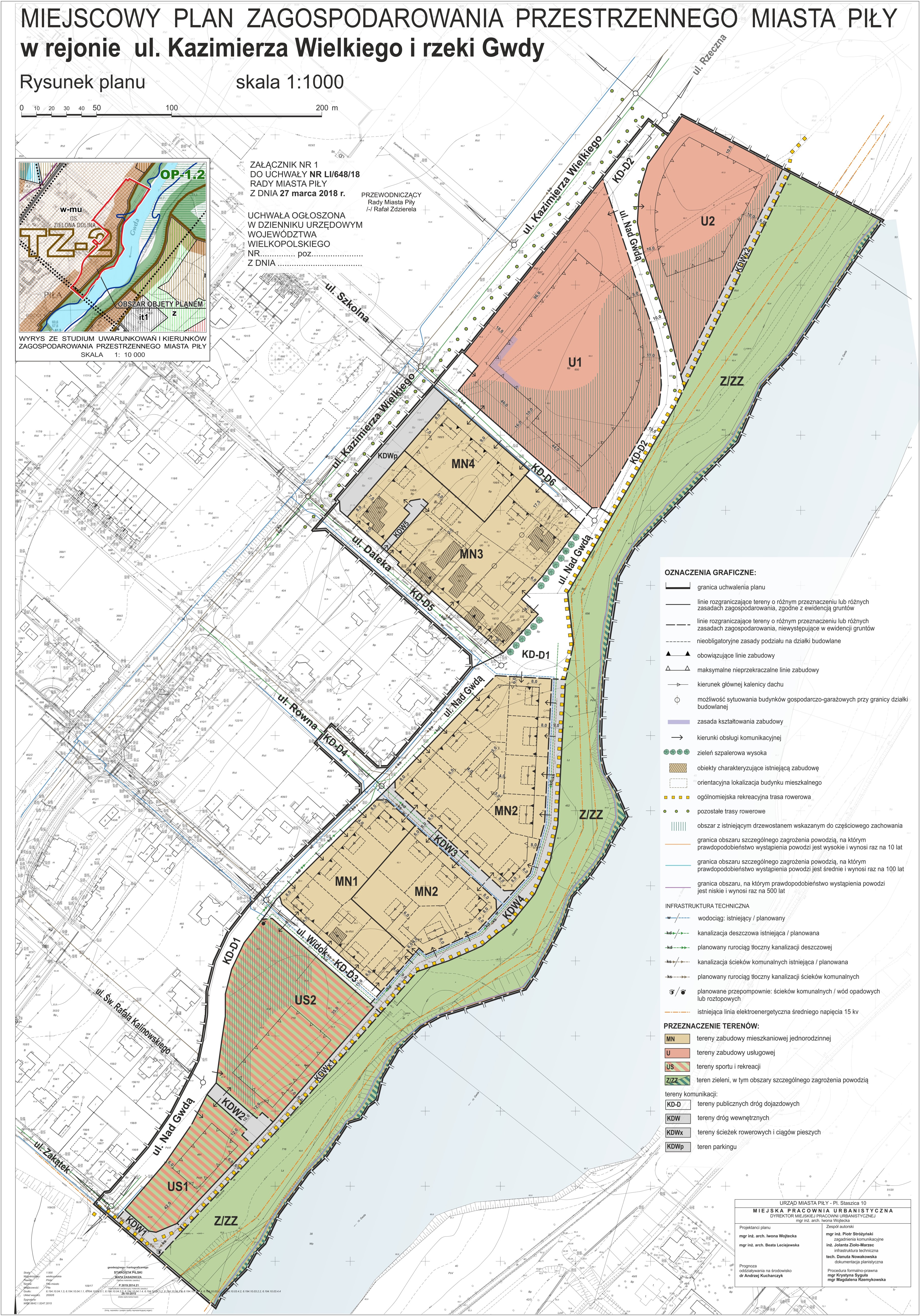
w sprawie miejscowego planu zagospodarowania przestrzennego miasta Piły w rejonie ul. Kazimierza Wielkiego i rzeki Gwdy
| Dokumenty do pobrania: | |
![]() | Treść uchwały (wprowadził: Piotr Kutz 2018-04-10 09:46:00) |
![]() | Załącznik nr 1 (wprowadził: Piotr Kutz 2018-04-10 09:46:40) |
![]() | |






