Uchwała Nr XLIV/464/21
Rady Miasta Piły
z dnia 8 czerwca 2021 r.
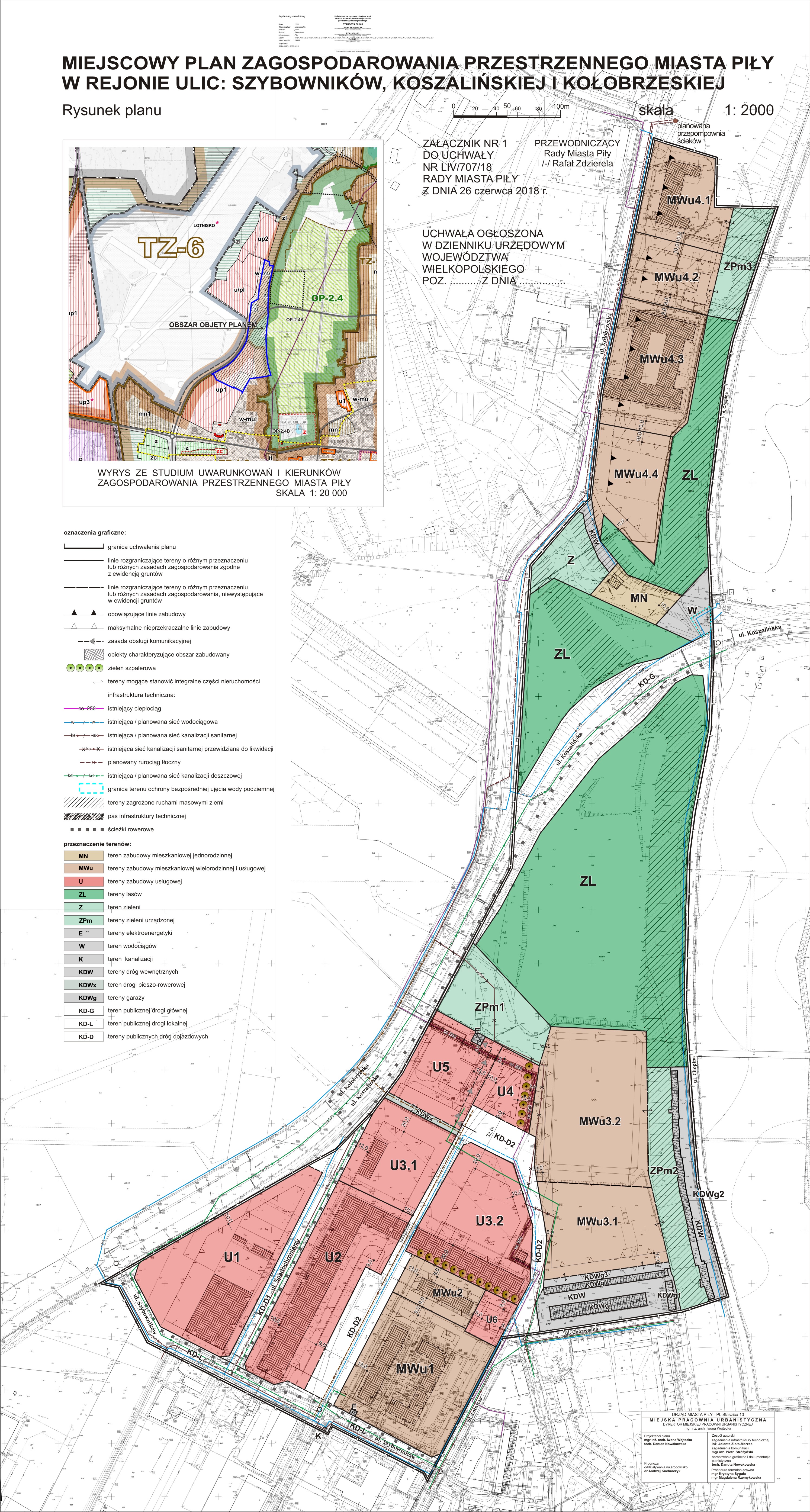
w sprawie ogłoszenia tekstu jednolitego uchwały w sprawie miejscowego planu zagospodarowania przestrzennego miasta Piły w rejonie ulic: Szybowników, Koszalińskiej i Kołobrzeskiej
| Dokumenty do pobrania: | |
![]() | Treść uchwały (wprowadził: Piotr Kutz 2021-06-22 12:15:02) |
![]() | Rysunek planu (wprowadził: Krzysztof Ronij 2021-07-30 11:00:09) |
![]() | |






