UCHWAŁA Nr IV/38/19
RADY MIASTA PIŁY
z dnia 29 stycznia 2019 r.
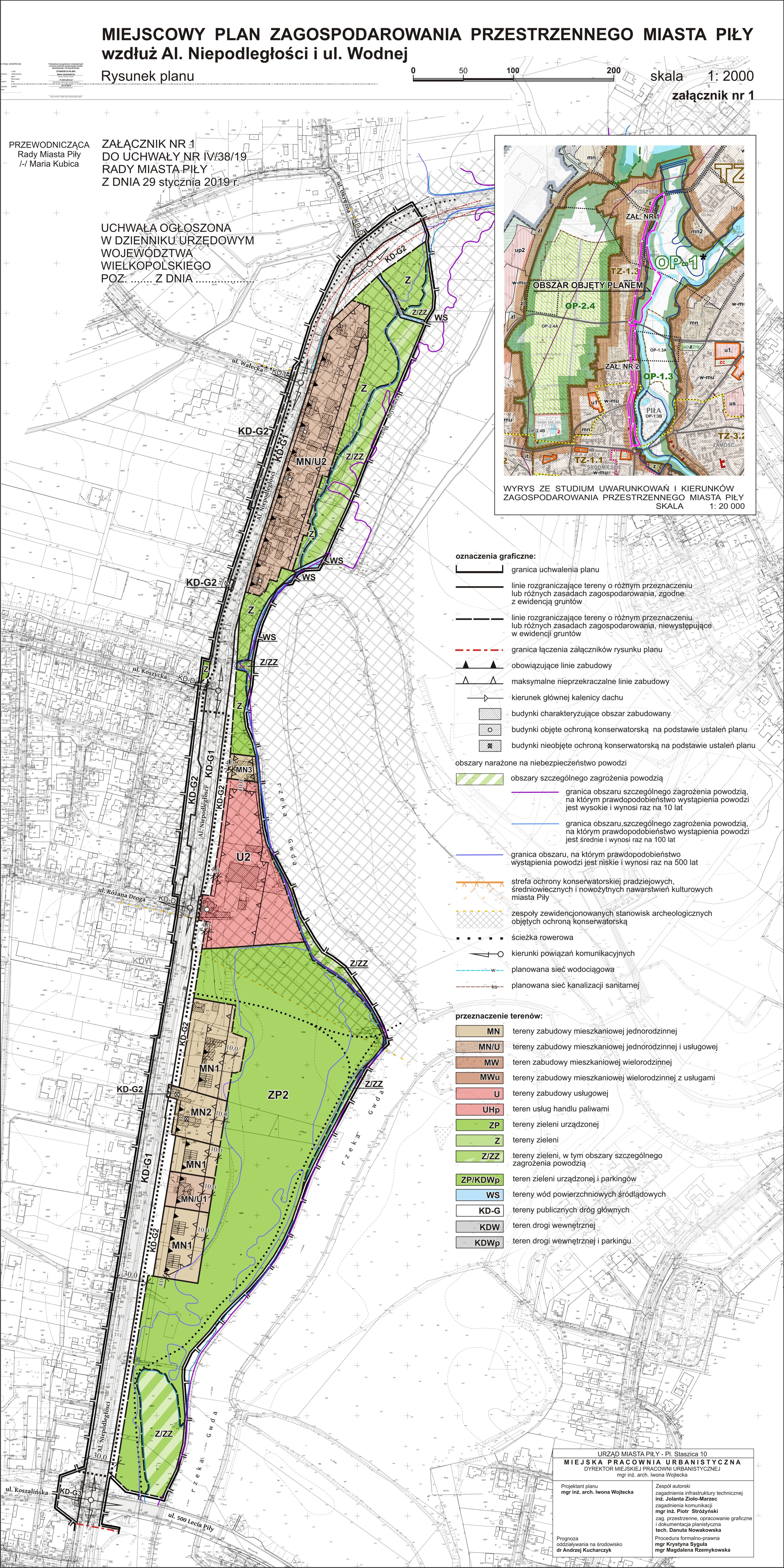
w sprawie miejscowego planu zagospodarowania przestrzennego miasta Piły wzdłuż Al. Niepodległości i ul. Wodnej
| Dokumenty do pobrania: | |
![]() | Treść uchwały (wprowadził: Piotr Kutz 2019-02-15 10:25:57) |
![]() | Załącznik nr 1 (wprowadził: Piotr Kutz 2019-02-15 10:26:15) |
![]() | Załącznik nr 2 (wprowadził: Piotr Kutz 2019-02-15 10:26:47) |
![]() | |






