Uchwała Nr XXVI/397/16
Rady Miasta Piły
z dnia 25 października 2016 r.
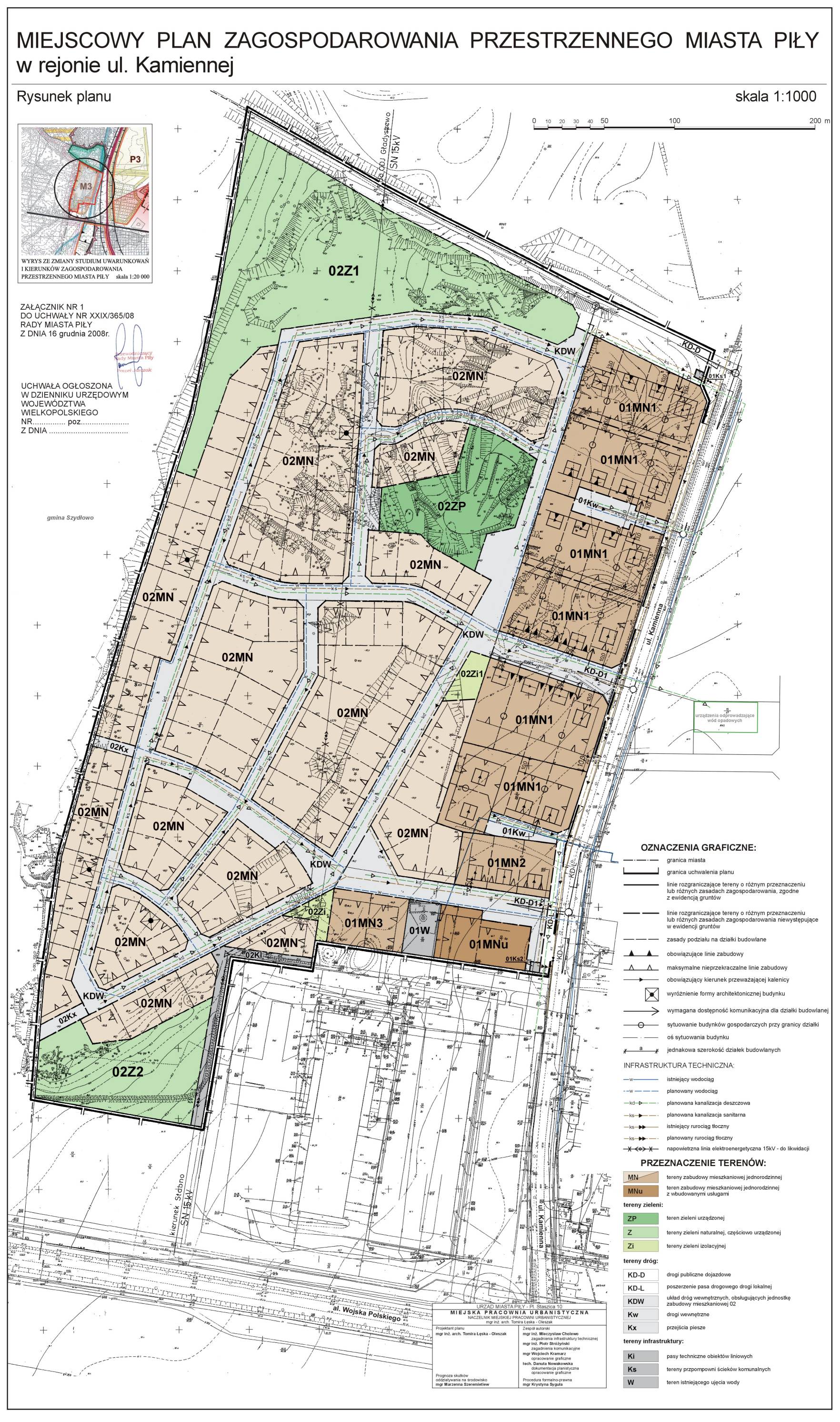
w sprawie ogłoszenia tekstu jednolitego uchwały w sprawie miejscowego planu zagospodarowania przestrzennego miasta Piły w rejonie ul. Kamiennej
| Dokumenty do pobrania: | |
![]() | Treść uchwały (wprowadził: Piotr Kutz 2016-11-08 11:08:29) |
![]() | Rysunek planu (wprowadził: Piotr Kutz 2017-01-03 10:42:50) |
![]() | |






