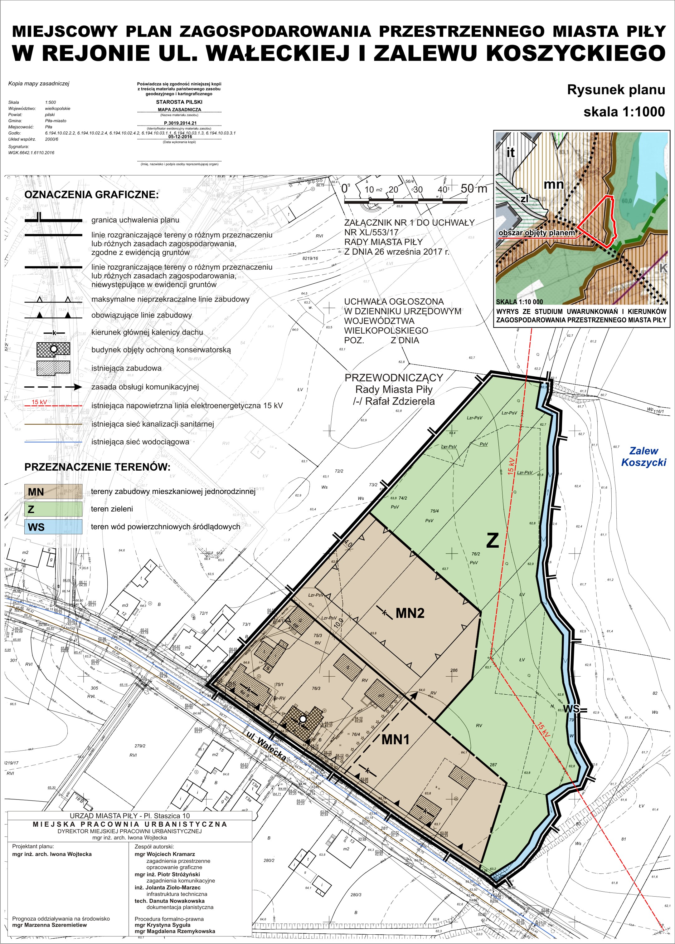
UCHWAŁA Nr XL/553/17
RADY MIASTA PIŁY
z dnia 26 września 2017 r.
w sprawie miejscowego planu zagospodarowania przestrzennego miasta Piły w rejonie ul. Wałeckiej i Zalewu Koszyckiego
| Dokumenty do pobrania: | |
![]() | Treść uchwały (wprowadził: Piotr Kutz 2017-10-12 08:03:15) |
![]() | Załącznik nr 1 (wprowadził: Piotr Kutz 2017-10-12 08:03:31) |
![]() | |






