Strona korzysta z plików cookies w celu realizacji usług i zgodnie z Polityką Prywatności. Możesz określić warunki przechowywania lub dostępu do plików cookies w Twojej przeglądarce. X
Urzędu Miasta Piły (Archiwum)
Bip - Strona główna

Rada Miasta

Urząd Miasta

Oświadczenia majątkowe

Załatwianie spraw w Urzędzie

Ogłoszenia i komunikaty »

Prawo lokalne

Przetargi na nieruchomości i ruchomości gminne

Konkursy ofert

Zagospodarowanie przestrzenne

Nabór na stanowiska

Jednostki organizacyjne

Jednostki pomocnicze-Osiedla »

Budżet i mienie Gminy

Raporty o stanie Gminy Piła »

Organizacje pozarządowe

Strategie i programy »

Ochrona środowiska

Informacja publiczna

Konsultacje z mieszkańcami »

Spisy Powszechne

Wybory Powszechne

Zgromadzenia publiczne

Działalność lobbingowa

Polityka prywatności »

Ochrona Danych Osobowych »

Elektroniczna Skrzynka Podawcza »

Dostępność

Miejska Komisja Rozwiązywania Problemów Alkoholowych »

walidacja css walidacja html

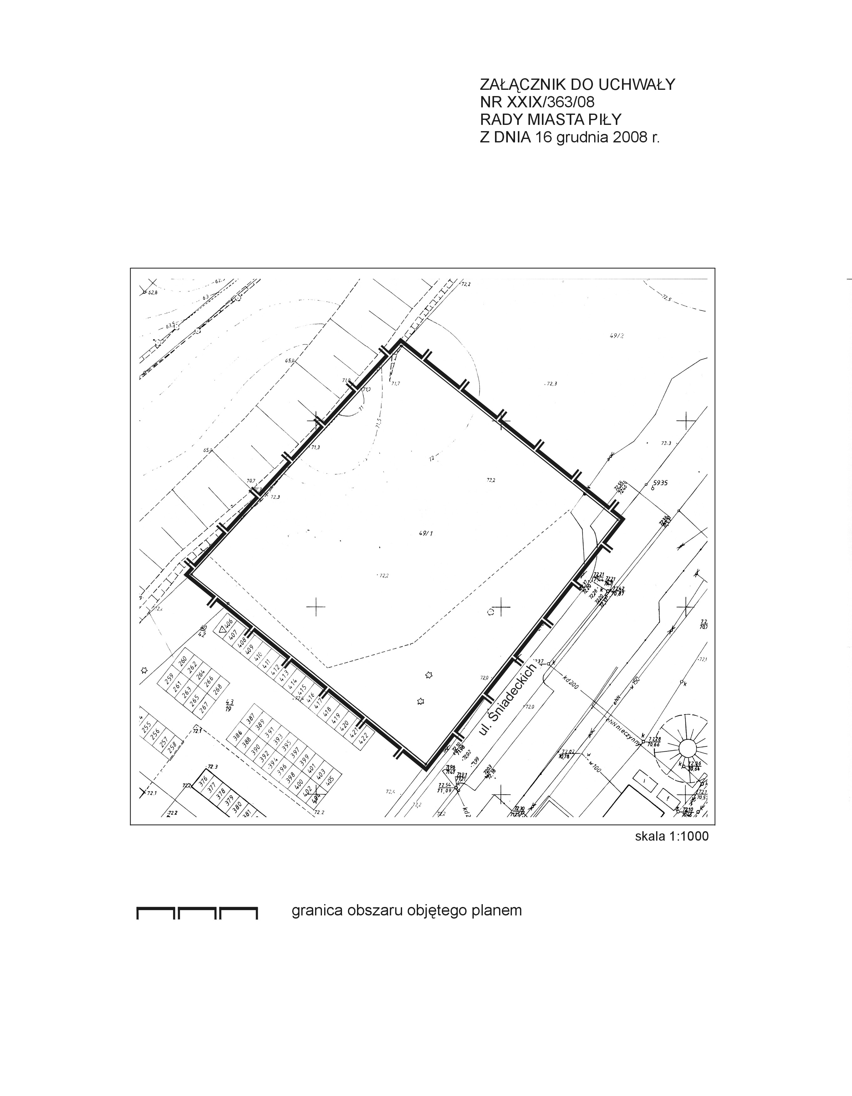
Uchwały Rady Miasta: w sprawie przystąpienia do sporządzenia miejscowego planu zagospodarowania przestrzennego miasta Piły w rejonie ul. Śniadeckich (dz. nr ewid.49/1)

Na podstawie art. 18 ust. 2 pkt 15 ustawy z dnia 8 marca 1990 r. o samorządzie gminnym (j. t. Dz. U. z 2001 r. Nr 142 poz. 1591 zmiana: Dz. U. z 2002 r. Nr 23 poz. 220, Nr 62 poz. 558, Nr 113 poz. 984, Nr 153 poz. 1271, Nr 214 poz. 1806, z 2003 r. Nr 80 poz. 717, Nr 162 poz. 1568, Dz. U. z 2004 r. Nr 102 poz. 1055, Nr 116 poz. 1203, Nr 167 poz. 1759, Dz. U. z 2005 r. Nr 172 poz. 1441, Nr 175 poz. 1457, Dz. U. z 2006 r. Nr 17 poz. 128, Nr 181 poz. 1337, Dz. U. z 2007 r. Nr 48 poz. 327, Nr 138 poz. 974, Nr 173 poz. 1218, Dz. U. z 2008r. Nr 180 poz. 1111), art. 14 ust. 1 i 4 ustawy z dnia 27 marca 2003 r. o planowaniu i zagospodarowaniu przestrzennym (Dz. U. Nr 80 poz. 717, zmiana: Dz. U. z 2004 r. Nr 6 poz. 41, Nr 141 poz. 1492, Dz. U. z 2005r. Nr 113 poz. 954, Nr 130 poz. 1087, Dz. U. z 2006 r. Nr 45 poz. 319, Nr 225 poz. 1635, Dz. U. z 2008 r. Nr 199 poz. 1227, Nr 201 poz. 1237)

Dokumenty do pobrania:
Załącznik
(wprowadził: 2008-12-16 00:00:00)
 
   

wstecz